Tragwerksplanung
Architektur
Gutachten
Holzschutz
Beweissicherung
Bauüberwachung
Gebäudemerkmale
Verdeckte Baukonstruktionen
Ausführung IBST
Gutachten zu statisch konstruktiven Bauschäden, Aufnahme der Gebäudeschäden, Schadenanalyse, Unterbreiten von Sanierungsvorschlag
Auftraggeber
DEGI agemis GmbH, Frankfurt am Main
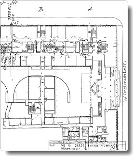
Teilgrundriß mit Risseeintragungen
Schadensanierung
WE Nr. 23392, Windmühlstr 14, Frankfurt am Main
Windmuehlstr14Frankfurt
klein1
klein2
Kontakt
Projekte
wir
IBST
Ingenierbüro für Bauplanung Hans-Jürgen Stein, Podemuser Straße 48, 01156 Dresden